주식회사 에스제이종합건설
LOG IN
로그인
회사소개
사업분야
포트폴리오
건축상담
주식회사 에스제이종합건설
회사소개
사업분야
포트폴리오
건축상담
Search
검색
Log In
로그인
Cart
장바구니
주식회사 에스제이종합건설
주식회사 에스제이종합건설
회사소개
사업분야
포트폴리오
건축상담
Search
검색
Log In
로그인
Cart
장바구니
주식회사 에스제이종합건설
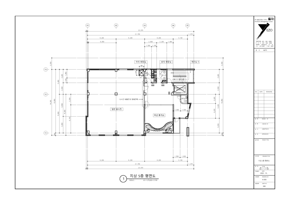
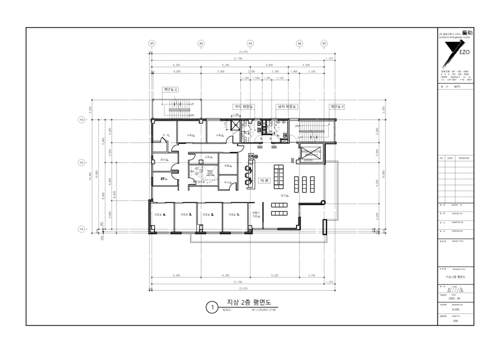
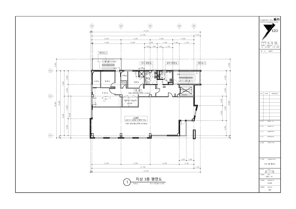
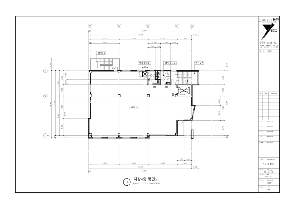
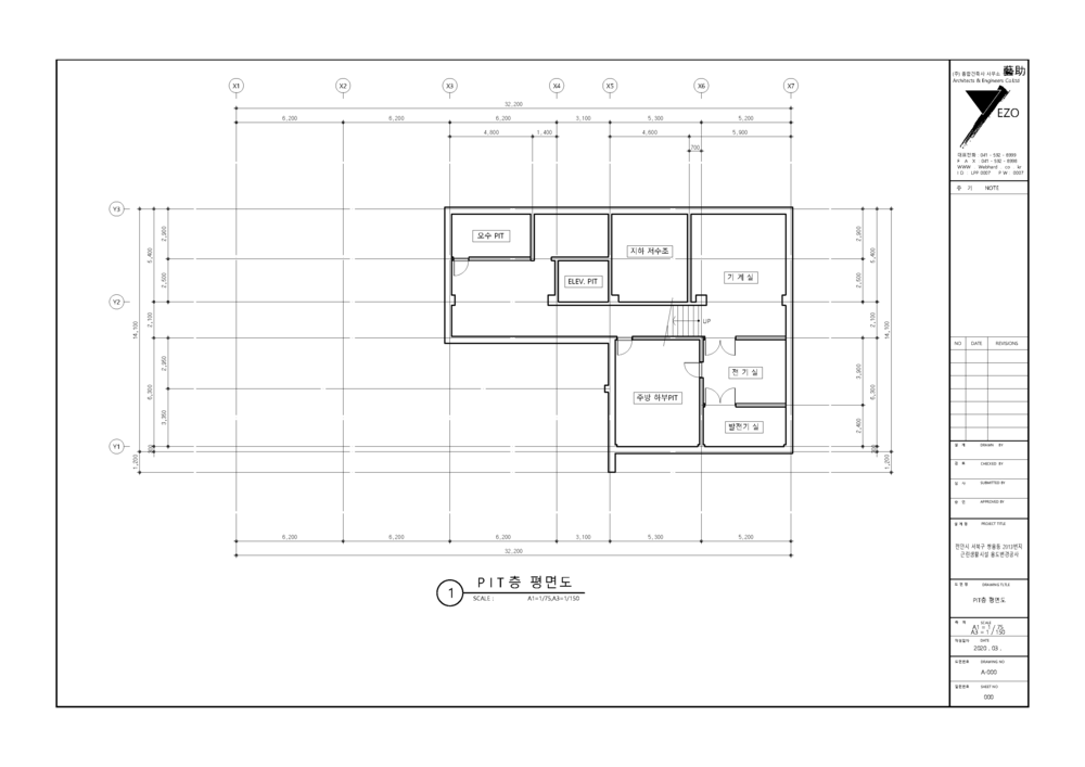
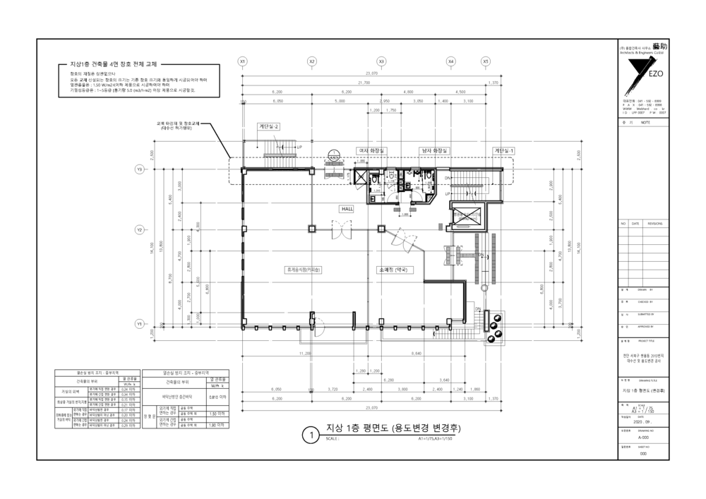
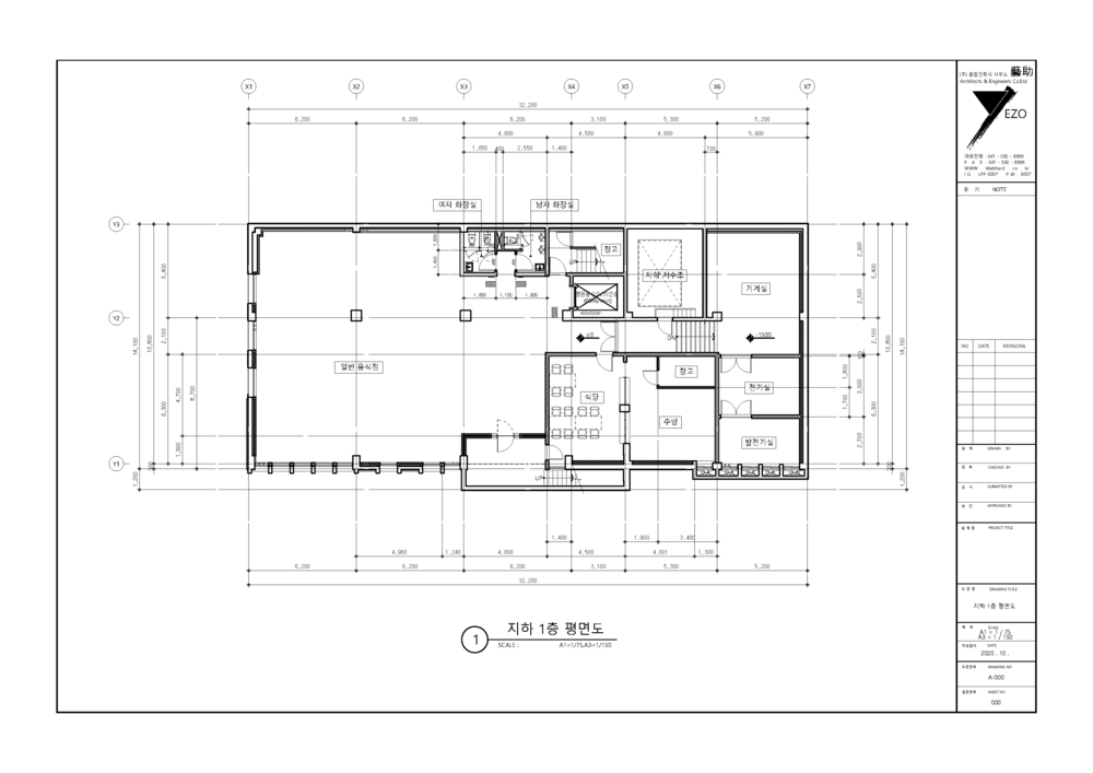
천안 쌍용동 근린생활시설 리모델링
리모델링
대지위치ㅣ충청남도 천안시 서북구 쌍용동 2013
주용도ㅣ제1, 2종근린생활시설
주구조ㅣ철근콘크리트조, 일반철골조
지붕ㅣ콘크리트슬라브
대지면적ㅣ1,077.4㎡
건축면적ㅣ339.635㎡
연면적ㅣ1,950.89㎡
건폐율ㅣ31.52%
용적률ㅣ140.34%
높이ㅣ24m
층수ㅣ지상 5층, 지하 1층
상세 설명 머리글
상세 설명
상세 설명 바닥글
후기(0)
질문(10)
관련 상품
프로젝트 갤러리
설계도면
위치
주소: 충청남도 천안시 서북구 쌍용동 2013
길찾기
재입고 알림 신청
휴대폰 번호
-
-
재입고 시 알림
신청하기